09:00 do 19:00

Ponedeljak - Subota

Prelep petosoban stan na Telepu

  • 397.800 EUR
Novi Sad, Telep
Prodaja
Prelep petosoban stan na Telepu
Novi Sad, Telep
  • 397.800 EUR

Opis

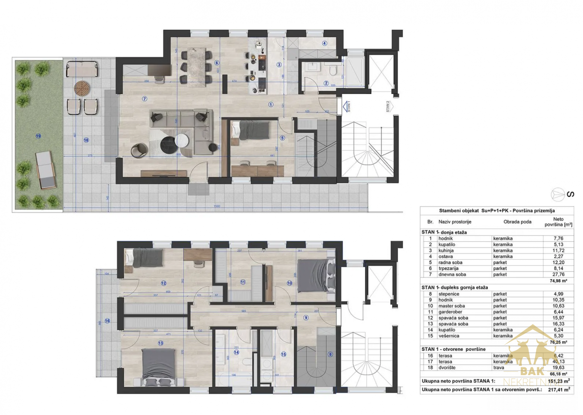
Na izuzetno mirnoj lokaciji u porodičnom delu Telepa, prodaje se prostran, funkcionalno organizovan petosoban dupleks stan površine 201 m², sa dodatnim privatnim dvorištem od 20 m². Stan se nalazi u manjoj stambenoj zgradi novije gradnje, sa svega nekoliko stambenih jedinica, što omogućava mir, privatnost i udobnost, uz visok nivo sigurnosti i komfora. Stan je raspoređen na dve etaže. Na donjoj etaži nalazi se prostrani dnevni boravak sa trpezarijom i kuhinjom otvorenog koncepta, radna soba, kupatilo, hodnik i ostava. Gornja etaža sadrži master spavaću sobu, još dve komotne spavaće sobe, kupatilo, garderober, hodnik, vešernicu, dve terase i izlaz u dvorište koje pruža dodatni prostor za boravak na otvorenom. Pored stana, postoji i mogućnost kupovine garažnog mesta koje uključuje prostor za dva vozila. Garaža ima dupla garažna vrata, što dodatno olakšava parkiranje i čini svakodnevnu upotrebu jednostavnom i komfornom. Grejanje u stanu je podno i funkcioniše na gas, što obezbeđuje ravnomernu toplotu i energetsku efikasnost tokom cele godine. Ulaz u objekat i zajednički prostori pokriveni su video nadzorom, što dodatno doprinosi osećaju sigurnosti. Ulica u kojoj se stan nalazi je tiha i povučena, bez buke i gužve, idealna za porodičan život, ali se u svega nekoliko koraka izlazi na frekventnije saobraćajnice koje omogućavaju odličnu povezanost sa ostatkom grada bilo da koristite sopstveni automobil ili gradski prevoz. Neposredno u blizini nalaze se svi sadržaji neophodni za svakodnevni život kao što su vrtići, osnovna škola i gimnazija, ambulanta, apoteka, supermarketi, prodavnice, pekare, kao i restorani, kafići i drugi ugostiteljski objekti. Sve vam je dostupno, a opet na dohvat ruke imate mir i privatnost koje je u urbanim sredinama sve teže pronaći. Ovaj stan je idealan izbor za one koji traže više od kvadrata, za one koji žele dom koji će biti u potpunosti prilagođen njihovim željama, bez kompromisa u kvalitetu, lokaciji i načinu života.
Za više informacija kao i za razgledanje stana slobodno nas kontaktirajte.

Kontakt telefoni: 060 338 81 84, 065 555 09 88, 065 444 7000
BAK Nekretnine

Detalji

Ažurirano 18 decembar 2025 u 13:00
  • Šifra Nekretnine: 1047
  • Tip nekretnine: Stan
  • Cena: 397.800 EUR
  • Veličina nekretnine: 201 m²
  • Struktura: Petosoban
  • Sprat: Prizemlje
  • Broj spratova: 2
  • Opremljenost: Prazan
  • Kupatila: 2
  • Status nekretnine: Prodaja
  • Grad Novi Sad
  • Država/okrug Srbija
  • Deo grada Telep

Zakaži obilazak

Vaše informacije

Kontakt informacije

Pregledaj oglase
Jovan Vujadinović

Informišite se o ovoj nekretnini

0 Review

Sortiraj po:
Ostavite recenziju

    Ostavite recenziju

    Slične Ponude

    Compare listings

    Compare
    Jovan Vujadinović
    • Jovan Vujadinović